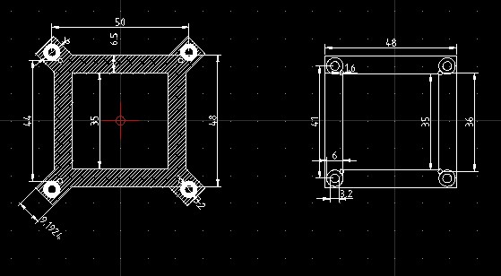
I want to overlap the two drawing,
I copy right drawing to paste left drawing but the center point can’t be aligned.
How can i do ? Please help, thanks~!!
Husky:
Hello eamontsai - welcome to the forum!
eamontsai:
I want to overlap the two drawing,
I copy right drawing to paste left drawing but the center point can’t be aligned.
How can i do ? Please help, thanks~!!
below is picture link.My Website scanner told me that this link leads to an infected site - please post the picture to your post - thank you!
How to Attach a File to a Post: How to Attach a File to a Post - QCAD Tips and Tutorials - QCAD Forum
Hi Husky:
I attached the picture and I think I have may found a solution for this problem.
solve:
1.found right drawing’s center point.
2.select right drawing.
3.choose “Modify”–>“Move”
4. cursor move the center point and click the point, and you can move the drawing to any where
5.move to the left drawing’s center point
6.overlap two drawing.
Looks good! ![]()
Maybe you like also to check out the Snap tool “Middle manual”. This tool will snap to the middle of two given points. ![]()
DAm382CXBTg




